Back

(0) Rainbow Lakes Dr

Dillard, GA 30537

Larry Wise
call for more info
615-738-0015
Ask a Question
Send to a Friend
Schedule a Showing
Request More Info
More Homes In
Upper Heatherstone
(0) Rainbow Lakes Dr, Dillard
Smart Mortgage Options
Dalton Carter
Lender
Lic. 1566538
Office:
Direct: 678-425-4140
AP Mortgage
340 Jesse Jewell Parkway
Suite 500A
Gainesville, GA 30501
Apply for a Loan
For Sale
MLS Number 10734371
3 Bedrooms
4 Bathrooms
0 Half Baths
2,192 Square Feet *estimated
Summary of (0) Rainbow Lakes Dr
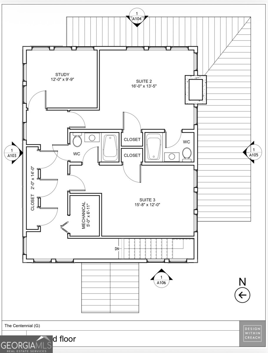
Welcome to The Centennial at Upper Heatherstone Nestled in the serene Upper Heatherstone neighborhood of Dillard, GA, this pre-construction mountain modern retreat, known as "The Centennial (G)," perfectly balances rustic charm with sophisticated architectural design. Spanning two thoughtfully planned levels, this home offers a seamless blend of indoor comfort and outdoor allure. Refined Living Spaces The main level is anchored by a spacious Living Room (19'-2" x 13'-6") featuring a cozy fireplace, ideal for cool mountain evenings. The open-concept layout flows effortlessly into a dedicated Dining area (8'-0" x 13'-4") and a modern kitchen designed for both daily living and hosting. * Primary Suite on Main: Enjoy the convenience of Suite 1 (11'-9" x 13'-9") located on the first floor, complete with a generous 8'-0" x 7'-4" closet and a private shower. * Upper Level Versatility: The second floor boasts two additional suites-Suite 2 (16'-0" x 13'-5") and Suite 3 (15'-8" x 12'-0")-providing ample space for family or guests. * Dedicated Work Space: A quiet Study (12'-0" x 9'-9") on the second level offers the perfect environment for a home office or creative studio. Stunning Exterior & Outdoor Living The Centennial's striking profile features a mix of classic siding and natural stone accents, topped with a dramatic gabled roof reaching a height of 23'-0". * Covered Porch: Relax on the expansive Covered Porch, an inviting space designed to take in the crisp Georgia mountain air. * Architectural Detail: The home features a grand stone chimney and a formal Entryway (6'-6" x 8'-0") that creates a lasting first impression. * Practical Amenities: Functional needs are met with a main-floor Laundry room, a convenient WC for guests, and a dedicated Mechanical room on the upper level. Dont miss this opportunity to take advantage of pre construction pricing. Builder, Butler Homes South.
Set in the popular Upper Heatherstone neighborhood, this 3-BR, 4-BA home offers a comfortable blend of space, style, and function. Inside, the home offers 2,192 square feet of finished living space, giving plenty of room for everyday living and easy entertaining. A bright, open kitchen offers generous workspace, storage, and a direct view into the main gathering spaces. A central family room and dining area provide a welcoming place to unwind, gather, and enjoy time together. Outside, the property offers approximately 1 acres, giving ample room to relax, play, or plan future outdoor projects. Practical parking available makes everyday living easier for households with multiple vehicles. Residents of Upper Heatherstone enjoy a blend of neighborhood charm and easy access to everyday conveniences. With only a few days on the market, this property is a must see for buyers watching the area. Currently offered at $799,900, this home delivers a strong combination of space, condition, and location.
Show more
(0) Rainbow Lakes Dr - Map & Directions
view in Google Maps
Facts & features
School District Information
High School
Middle School
Elementary School
Additional Information about
Upper Heatherstone
Association
Yes
Association Fee Includes
Private Roads
Water
Community Features
Gated
Gated Community
Yes
Additional Information about
(0) Rainbow Lakes Dr
County
Neighborhood
Year Built
2026
Appliances
Dishwasher
Oven/Range (Combo)
Refrigerator
Architectural Style
Craftsman
Foundation
Slab
Construction Materials
Block
Stone
Wood Siding
Cooling
Heat Pump
Flooring
Carpet
Hardwood
Tile
Heating
Heat Pump
Home Warranty
Yes
Interior Features
Master On Main Level
Laundry Features
Laundry Closet
Levels
Two
Selling Status
To Be Built
Roof
Composition
Rooms
Great Room
Media Room
Sewer Type
Septic Tank
Total Finished Area
2,192
Total Fire Places
1
Utilities
Electricity Available
Water Available
Water Source
Shared Well
Master on the Main
Yes
Land Information
Lot Size
.5 to 1 Acre
Lot Features
Private
Sloped
Lot Size Estimated
1
Garages and Parking Information
Parking Features
Parking Pad
Tax Information
Taxes
$116
Tax Year
24
Tax ID Number
058B 233-Z
Show more
listed by real estate agent 300 scenic llc and poss realty